物件No.3801282  貸店舗・貸事務所(区分)

北2条ビル【⭐札幌駅徒歩圏】

2486 (+管理費 無料)

1746,080
無料
-
011-280-4118

お電話の際は「物件No.3801282」をお伝えいただくとスムーズです。

⭐札幌駅とバスセンター駅のWアクセスのオフィスビル15坪!エントランスや共用部2021年リニューアル済のキレイなビルです。⭐南向きの明るい室内!個別空調・天高2,450㎜・正門玄関6:00~23:00で閉まります。 ※オフィス専用で募集。店舗使用はNGです。※空き予定の為、内観写真は他号室のものです。
⭐札幌駅とバスセンター駅のWアクセスのオフィスビル15坪!エントランスや共用部2021年リニューアル済のキレイなビルです。⭐南向きの明るい室内!個別空調・天高2,450㎜・正門玄関6:00~23:00で閉まります。 ※オフィス専用で募集。店舗使用はNGです。※空き予定の為、内観写真は他号室のものです。

基本情報

賃料・費用

2486 (+管理費 無料)

174万6,080円
無料
-
間取り・専有
その他 51.54㎡
住所
交通
札幌駅(徒歩10分)
バスセンター前駅(徒歩9分)
大通駅(徒歩10分)
西4丁目電停(徒歩15分)
築年月
築35年(1990年6月)
駐車場
有り 3万3,000円/台 空き2台

出店おすすめ業種

※出店不可業種:

美容・理容不可 飲食全般不可

設備・特徴

建物設備・特徴
エレベーター
室内設備・特徴
照明器具付 デザイナーズ
冷暖房
エアコン付 個別空調
立地
複数路線利用可 幹線道路沿い
放送・通信
ブロードバンド回線(光ファイバー等の高速インターネット)
特徴
男女別トイレ 男女別トイレ(共用部)

物件概要

階数
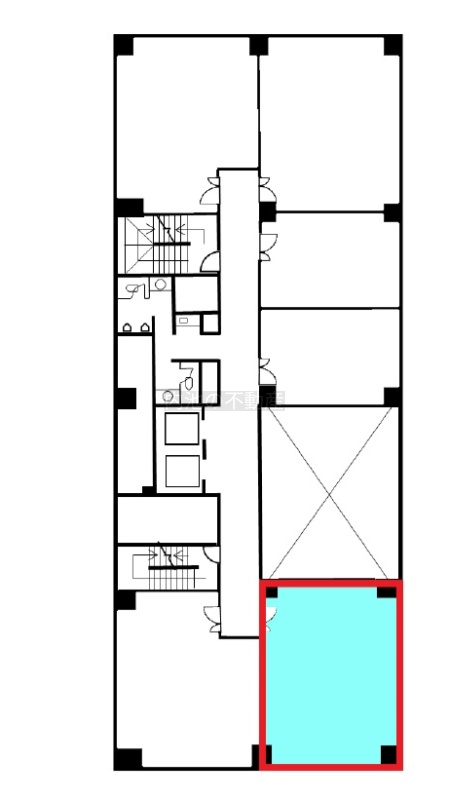
4階/地上9階建
専有面積
15.59坪 (51.54㎡)
所在地
北海道札幌市中央区北二条東1丁目2-10
構造
鉄筋コンクリート(RC)造
契約期間
普通借家
引渡し時期
2026年05月初旬
入居歴
あり
出店可能業種
事務所
出店不可業種
美容・理容不可、飲食全般不可
取引態様
媒介(客付)
物件No.
3801282
デザイナーズ物件 駅近物件 近隣月極駐車場有り 冷暖房個別有り 札幌駅エリア 大通エリア 大通イーストエリア 創成イーストエリア オフィス 事務所 冷房個別有り 人気ビルに付き、早期に成約になる場合が御座いますので予めご了承ください。

費用詳細

賃料
24万86円
敷金
174万6,080円
礼金
無料
仲介手数料
24万86円
管理費/共益費
無料
駐車場
有り

駐車可能台数: 2台

料金: 3万3,000円/台

備考: ※立体駐車場につき車高1550mm以下に限る

周辺環境

コンビニ セイコーマート北3条店

約295m 4分

ホームセンター キッチンハウス札幌店

約291m 4分

飲食店 やよい軒札幌駅南口店

約228m 3分

コンビニ セイコーマート北2条店

約233m 3分

スーパー まいばすけっと北1条東1丁目店

約226m 3分

病院 JR札幌病院

約189m 3分

郵便局 札幌北二条郵便局

約132m 2分

コンビニ セブンイレブン北海道STJR札幌病院店

約168m 3分

その他学校 札幌武蔵野美術学院

約137m 2分

コンビニ セブンイレブン札幌北2条東1丁目店

約65m 1分
011-280-4118

受付時間 9:00~17:00

定休日 土曜・日曜・祝日

公式LINE お問合せ