物件No.3712023  貸店舗・貸事務所(区分) 居抜き

ほそかわビル【⭐岩盤浴居抜!】

476,091 (+管理費 68,013)

無料
無料
-
011-280-4118

お電話の際は「物件No.3712023」をお伝えいただくとスムーズです。

⭐北24条エリアの61坪【岩盤浴居抜】でました!譲渡金なしの現状渡し⭐スケルトン渡しや分割貸しもご相談下さいませ。⭐出店可能業態の可否は都度お問い合わせ下さいませ。
⭐北24条エリアの61坪【岩盤浴居抜】でました!譲渡金なしの現状渡し⭐スケルトン渡しや分割貸しもご相談下さいませ。⭐出店可能業態の可否は都度お問い合わせ下さいませ。

基本情報

賃料・費用

476,091 (+管理費 68,013)

無料
無料
-
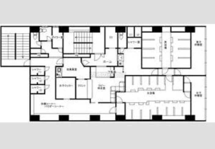
間取り・専有
その他 204.42㎡
住所
交通
北24条駅(徒歩3分)
北18条駅(徒歩14分)
新川駅(徒歩28分)
北12条駅(徒歩23分)
北13条東駅(徒歩27分)
駐車場
有り 空き1台

出店おすすめ業種

※出店不可業種:

飲食全般不可

居抜き情報

その他
造作譲渡料 無料

現地確認(※すべて残置物です。設備の保証はありません)

設備・特徴

建物設備・特徴
エレベーター
室内設備・特徴
照明器具付 ガス設備 給排水設備
冷暖房
エアコン付 個別空調
立地
複数路線利用可 駅前立地 商店街に面す 幹線道路沿い
放送・通信
ブロードバンド回線(光ファイバー等の高速インターネット)
特徴
男女別トイレ
駐車場
無料駐車場あり

物件概要

階数
4階/地上6階建
専有面積
61.84坪 (204.42㎡)
所在地
北海道札幌市北区北二十三条西5丁目2-41
構造
鉄筋コンクリート(RC)造
契約期間
普通借家
引渡し時期
相談
入居歴
あり
出店可能業種
医療、小売・物販、美容・健康・介護
出店不可業種
飲食全般不可
居抜き情報
その他の居抜き
取引態様
媒介(客付)
物件No.
3712023
冷房個別有り 駐車場1台【無料】 大型物件 近隣月極駐車場有り 冷暖房個別有り 給排水個別有り トイレ個別有り オフィス スクール 理美容 ※諸条件ご相談ください。

費用詳細

賃料
47万6,091円
敷金
無料
礼金
無料
仲介手数料
47万6,091円
管理費/共益費
6万8,013円
権利金
129万8,430円
駐車場
有り

駐車可能台数: 1台

初回保証料
54万4,104円

周辺環境

ドラッグストア ツルハドラッグ北24条中央店

約113m 2分

飲食店 しゃぶしゃぶ温野菜北24条店

約159m 2分

飲食店 なか卯札幌北24条店

約118m 2分

コンビニ ローソン札幌北23条西四丁目店

約144m 2分

コンビニ セイコーマート北24条駅前店

約96m 2分

コンビニ ローソン札幌北23条西店

約99m 2分

郵便局 札幌北二十三条郵便局

約133m 2分

スーパー まいばすけっと北23条西5丁目店

約66m 1分

コンビニ ファミリーマート札幌北23条西5丁目店

約101m 2分

その他学校 クラ・ゼミ札幌北24条校

約1m 1分
011-280-4118

受付時間 9:00~17:00

定休日 土曜・日曜・祝日

公式LINE お問合せ