物件No.3705151  貸店舗・貸事務所(区分)

e.us NAEBO(イアスナエボ) 旧ハートランド21【⭐P6台込!】

385,000 (+管理費 無料)

35
35
-
011-280-4118

お電話の際は「物件No.3705151」をお伝えいただくとスムーズです。

⭐3部屋に分かれた路面店44坪!駐車場6台(@13200円)まで借りれます⭐倉庫や書庫、会議室など個別の部屋が必要な業態にいかがでしょうか?⭐エアコン・灯油ストーブ(残置物)付きの快適オフィス!⭐ロードヒーティング付き駐車場で除雪の手間なし! 是非一度ご内覧下さいませ。
⭐3部屋に分かれた路面店44坪!駐車場6台(@13200円)まで借りれます⭐倉庫や書庫、会議室など個別の部屋が必要な業態にいかがでしょうか?⭐エアコン・灯油ストーブ(残置物)付きの快適オフィス!⭐ロードヒーティング付き駐車場で除雪の手間なし! 是非一度ご内覧下さいませ。

基本情報

賃料・費用

385,000 (+管理費 無料)

35万円
35万円
-
間取り・専有
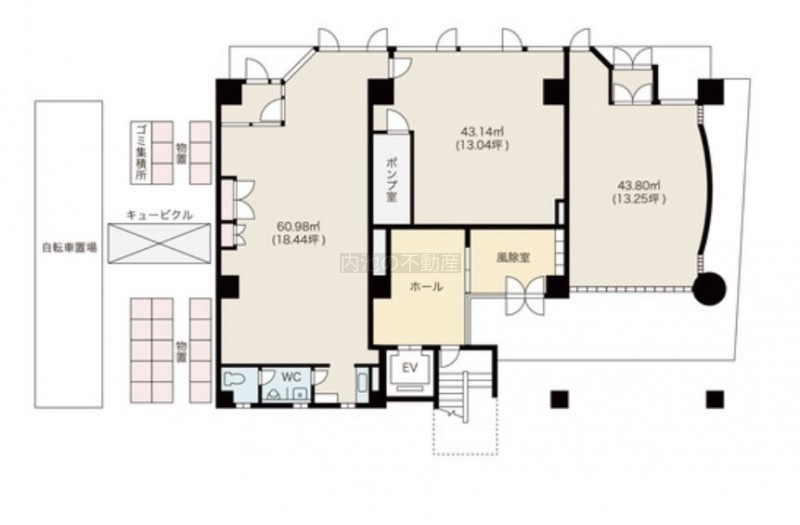
その他 147.87㎡
住所
交通
東区役所前駅(徒歩24分)
環状通東駅(徒歩18分)
苗穂駅(徒歩10分)
駐車場
有り 1万3,200円/台 空き6台

出店おすすめ業種

設備・特徴

建物設備・特徴
エレベーター
特徴
路面店 前面ガラス張り 男女別トイレ
室内設備・特徴
照明器具付 ガス設備 給排水設備
冷暖房
エアコン付 灯油暖房
立地
幹線道路沿い
放送・通信
ブロードバンド回線(光ファイバー等の高速インターネット)

物件概要

階数
1階/地上10階建
専有面積
44.73坪 (147.87㎡)
所在地
北海道札幌市東区苗穂町3丁目1-5
構造
鉄筋コンクリート(RC)造
契約期間
普通借家
引渡し時期
即時
入居歴
あり
出店可能業種
事務所
取引態様
媒介(客付)
物件No.
3705151
大型物件 駅近物件 近隣月極駐車場有り 1階路面店 冷暖房個別有り 給排水個別有り トイレ個別有り オフィス 事務所 ※諸条件ご相談ください。 スクール 倉庫 冷房個別有り 前面ガラス張り

費用詳細

賃料
38万5,000円
敷金
35万円
礼金
35万円
仲介手数料
38万5,000円
管理費/共益費
無料
駐車場
有り

駐車可能台数: 6台

料金: 1万3,200円/台

保証会社
38万5,000円

周辺環境

公園 希望公園

約708m 9分

幼稚園・保育園・こども園 幼保連携型認定こども園ふしこ幼稚園

約813m 11分

飲食店 なか卯札幌本町店

約541m 7分

公園 苗穂グリーン公園

約667m 9分

コンビニ ファミリーマート札幌北8条東17丁目店

約550m 7分

コンビニ ファミリーマート札幌北6条東20丁目店

約498m 7分

スーパー スーパーアークス苗穂店

約509m 7分

郵便局 札幌苗穂郵便局

約302m 4分

幼稚園・保育園・こども園 苗穂保育園

約173m 3分

銀行 サツラク農協本所

約146m 2分
011-280-4118

受付時間 9:00~17:00

定休日 土曜・日曜・祝日

公式LINE お問合せ