物件No.3711121  貸店舗・貸事務所(区分)

アルファ西9丁目ビル(旧第2北海ビル)【⭐市電通りに面する路面店!】

477,829 (+管理費 43,439)

1303,170
無料
-
011-280-4118

お電話の際は「物件No.3711121」をお伝えいただくとスムーズです。

⭐西11丁目駅・市電・大通駅とトリプルアクセス可の好立地ビル路面店39坪でました!⭐集中冷暖房、共用トイレ、給湯室ありの快適オフィス⭐大通公園も徒歩圏で自然環境も魅力です! ※定期借家契約の期間満了後再契約はご相談下さいませ。※出店可能業種はお問い合わせ下さいませ。構造上、給排水が取れませんので飲食業や美容室など水道を使用する業態はNGです。
⭐西11丁目駅・市電・大通駅とトリプルアクセス可の好立地ビル路面店39坪でました!⭐集中冷暖房、共用トイレ、給湯室ありの快適オフィス⭐大通公園も徒歩圏で自然環境も魅力です! ※定期借家契約の期間満了後再契約はご相談下さいませ。※出店可能業種はお問い合わせ下さいませ。構造上、給排水が取れませんので飲食業や美容室など水道を使用する業態はNGです。

基本情報

賃料・費用

477,829 (+管理費 43,439)

130万3,170円
無料
-
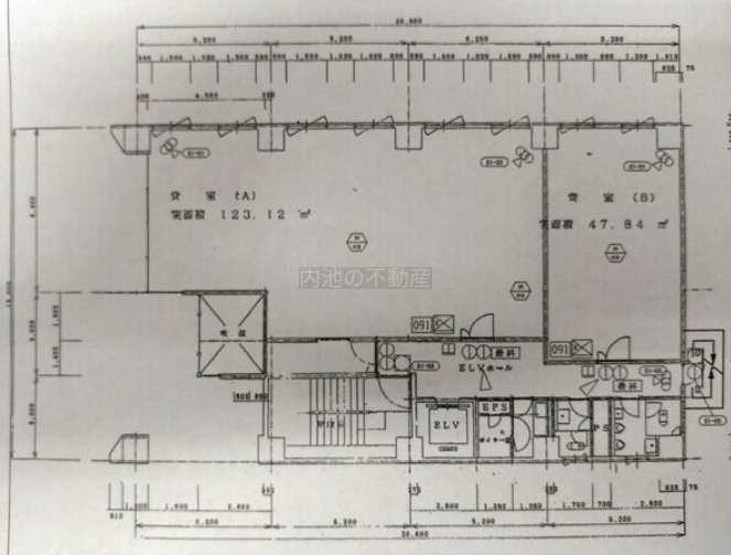
間取り・専有
その他 130.56㎡
住所
交通
西8丁目電停(徒歩2分)
西11丁目電停(徒歩5分)
大通駅(徒歩13分)
さっぽろ駅(徒歩20分)
駐車場
近隣月極駐車場

出店おすすめ業種

※出店不可業種:

美容・理容不可 飲食全般不可

設備・特徴

建物設備・特徴
エレベーター
特徴
路面店 スケルトン 前面ガラス張り 男女別トイレ(共用部)
室内設備・特徴
照明器具付 ガス設備 給排水設備
冷暖房
エアコン付 セントラル空調
立地
複数路線利用可 商店街に面す 幹線道路沿い
放送・通信
ブロードバンド回線(光ファイバー等の高速インターネット)
その他
大型

物件概要

階数
1階/地上7階建
専有面積
39.49坪 (130.56㎡)
所在地
北海道札幌市中央区南一条西9丁目1-2
構造
鉄骨鉄筋コンクリート(SRC)造
契約期間
定期借家
引渡し時期
2026年01月下旬
入居歴
あり
出店可能業種
教育・スクール、小売・物販、事務所
出店不可業種
美容・理容不可、飲食全般不可
取引態様
媒介(客付)
物件No.
3711121
冷暖房集中 大型物件 駅近物件 近隣月極駐車場有り 大通エリア オフィス 事務所 ※諸条件ご相談ください。 1階路面店 冷暖房集中 前面ガラス張り 軽飲食店 人気ビルに付き、早期に成約になる場合が御座いますので予めご了承ください。

費用詳細

賃料
47万7,829円
敷金
130万3,170円
礼金
無料
仲介手数料
47万7,829円
管理費/共益費
4万3,439円
駐車場
近隣月極駐車場
初回保証料
52万1,268円

周辺環境

飲食店 吉野家大通西10丁目店

約223m 3分

コンビニ ローソン札幌大通西十丁目店

約325m 5分

コンビニ セブンイレブン札幌南2西9店

約178m 3分

コンビニ ローソン札幌南大通西9丁目店

約190m 3分

スーパー まいばすけっと南1条西10丁目店

約80m 1分

銀行 北海道銀行南一条支店

約75m 1分

幼稚園・保育園・こども園 札幌こども保育園

約262m 4分

その他学校 札幌ビューティーアート専門学校

約262m 4分

その他学校 札幌ブライダル&ホテル観光専門学校

約190m 3分

コンビニ セイコーマート中央店

約45m 1分
011-280-4118

受付時間 9:00~17:00

定休日 土曜・日曜・祝日

公式LINE お問合せ