物件No.3803102  貸店舗・貸事務所(区分)

【⭐大通3分】郵政福祉札幌第1ビル

424,760 (+管理費 10122)

4633,752
無料
無料
011-280-4118

お電話の際は「物件No.3803102」をお伝えいただくとスムーズです。

⭐市電通りに面したハイグレードビル30坪出ました!⭐1階に郵便局、地下には飲食店の入る落ち着いたビルです⭐2016年共用部リニューアル済み!⭐個別冷暖房・セキュリティ完備、日当たり良好の快適オフィス。現在はオフィス専門で募集中 ※空き予定の為、内観写真は他号室のものです。
⭐市電通りに面したハイグレードビル30坪出ました!⭐1階に郵便局、地下には飲食店の入る落ち着いたビルです⭐2016年共用部リニューアル済み!⭐個別冷暖房・セキュリティ完備、日当たり良好の快適オフィス。現在はオフィス専門で募集中 ※空き予定の為、内観写真は他号室のものです。

基本情報

賃料・費用

424,760 (+管理費 10122)

463万3,752円
無料
無料
間取り・専有
その他 100.3㎡
住所
交通
大通駅(徒歩3分)
西4丁目電停(徒歩4分)
西8丁目電停(徒歩4分)
すすきの電停(徒歩9分)
築年月
築42年(1983年10月)
駐車場
近隣月極駐車場

出店おすすめ業種

※出店不可業種:

美容・理容不可 飲食全般不可

設備・特徴

建物設備・特徴
エレベーター
室内設備・特徴
照明器具付
冷暖房
エアコン付 個別空調
立地
複数路線利用可 駅前立地 商店街に面す 幹線道路沿い
セキュリティ
24時間セキュリティー
放送・通信
ブロードバンド回線(光ファイバー等の高速インターネット)
特徴
男女別トイレ(共用部)

物件概要

階数
8階/地上8階建
専有面積
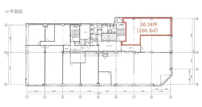
30.34坪 (100.30㎡)
所在地
北海道札幌市中央区南一条西5丁目20
構造
鉄骨鉄筋コンクリート(SRC)造
契約期間
定期借家
引渡し時期
相談
入居歴
あり
出店可能業種
事務所
出店不可業種
美容・理容不可、飲食全般不可
管理人
日勤
取引態様
媒介(客付)
物件No.
3803102
近隣月極駐車場有り 駅近物件 冷暖房個別有り 大通エリア オフィス 事務所 スクール ※諸条件ご相談ください。 冷房個別有り

費用詳細

賃料
42万4,760円
敷金
463万3,752円
保証金
無料
礼金
無料
仲介手数料
42万4,760円
管理費/共益費
10万122円
権利金
無料
駐車場
近隣月極駐車場
初回保証料
52万4,882円
011-280-4118

受付時間 9:00~17:00

定休日 土曜・日曜・祝日

公式LINE お問合せ