物件No.3801152  貸店舗・貸事務所(区分)

郵政福祉札幌第1ビル【⭐市電通りに面するオフィス専用物件】

417,038 (+管理費 1089)

4549,512
無料
無料
011-280-4118

お電話の際は「物件No.3801152」をお伝えいただくとスムーズです。

⭐市電通りに面したハイグレードビル30坪。2016年共用部リニューアル済み⭐個別冷暖房・セキュリティ完備、日当たり良好の快適オフィス。現在はオフィス専門で募集中⭐1階に郵便局、地下フロアに居酒屋や喫茶店など飲食街もあり便利です。 ※室内写真は他号室の物です。参考まで
⭐市電通りに面したハイグレードビル30坪。2016年共用部リニューアル済み⭐個別冷暖房・セキュリティ完備、日当たり良好の快適オフィス。現在はオフィス専門で募集中⭐1階に郵便局、地下フロアに居酒屋や喫茶店など飲食街もあり便利です。 ※室内写真は他号室の物です。参考まで

基本情報

賃料・費用

417,038 (+管理費 1089)

454万9,512円
無料
無料
間取り・専有
その他 100.3㎡
住所
交通
すすきの電停(徒歩9分)
西8丁目電停(徒歩4分)
西4丁目電停(徒歩4分)
大通駅(徒歩3分)
駐車場
近隣月極駐車場

出店おすすめ業種

※出店不可業種:

美容・理容不可 飲食全般不可

設備・特徴

建物設備・特徴
エレベーター
室内設備・特徴
照明器具付
冷暖房
エアコン付 個別空調
立地
複数路線利用可 駅前立地 商店街に面す 幹線道路沿い
セキュリティ
24時間セキュリティー
放送・通信
ブロードバンド回線(光ファイバー等の高速インターネット)
特徴
男女別トイレ(共用部)

物件概要

階数
8階/地上8階建
専有面積
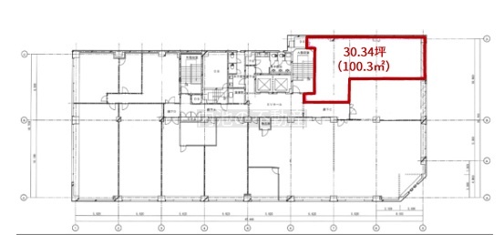
30.34坪 (100.30㎡)
所在地
北海道札幌市中央区南一条西5丁目20
構造
鉄骨鉄筋コンクリート(SRC)造
契約期間
定期借家
引渡し時期
即時
入居歴
あり
出店可能業種
事務所
出店不可業種
美容・理容不可、飲食全般不可
管理人
日勤
取引態様
媒介(客付)
物件No.
3801152
近隣月極駐車場有り 駅近物件 冷暖房個別有り 大通エリア オフィス 事務所 スクール ※諸条件ご相談ください。 冷房個別有り

費用詳細

賃料
41万7,038円
敷金
454万9,512円
保証金
無料
礼金
無料
仲介手数料
41万7,038円
管理費/共益費
10万89円
権利金
無料
駐車場
近隣月極駐車場

周辺環境

コンビニ ファミリーマート札幌南1条西5丁目店

約186m 3分

銀行 北海道信用金庫大通南支店

約136m 2分

ホームセンター The JOHNSON STORE

約119m 2分

コンビニ セイコーマート大通西5丁目店

約162m 3分

コンビニ ローソン札幌南1条西6丁目店

約80m 1分

郵便局 札幌南一条郵便局

約33m 1分
011-280-4118

受付時間 9:00~17:00

定休日 土曜・日曜・祝日

公式LINE お問合せ