物件No.3711011  貸店舗・貸事務所(区分)

屯田7条4丁目テナント2【⭐P3台無料!】

297,000 (+管理費 無料)

162
無料
-
011-280-4118

お電話の際は「物件No.3711011」をお伝えいただくとスムーズです。

⭐屯田の商業エリアに1棟貸し30坪(P3台無料)でました!となりAOKIさん、向かいにYAMADA電気のある車通りの多い立地です⭐現在は空調関係の事務所使用ですが店舗や整体院、美容室、塾などにもおすすめです!⭐定期借家契約6年ですが満期後の再契約もご相談下さいませ。
⭐屯田の商業エリアに1棟貸し30坪(P3台無料)でました!となりAOKIさん、向かいにYAMADA電気のある車通りの多い立地です⭐現在は空調関係の事務所使用ですが店舗や整体院、美容室、塾などにもおすすめです!⭐定期借家契約6年ですが満期後の再契約もご相談下さいませ。

基本情報

賃料・費用

297,000 (+管理費 無料)

162万円
無料
-
間取り・専有
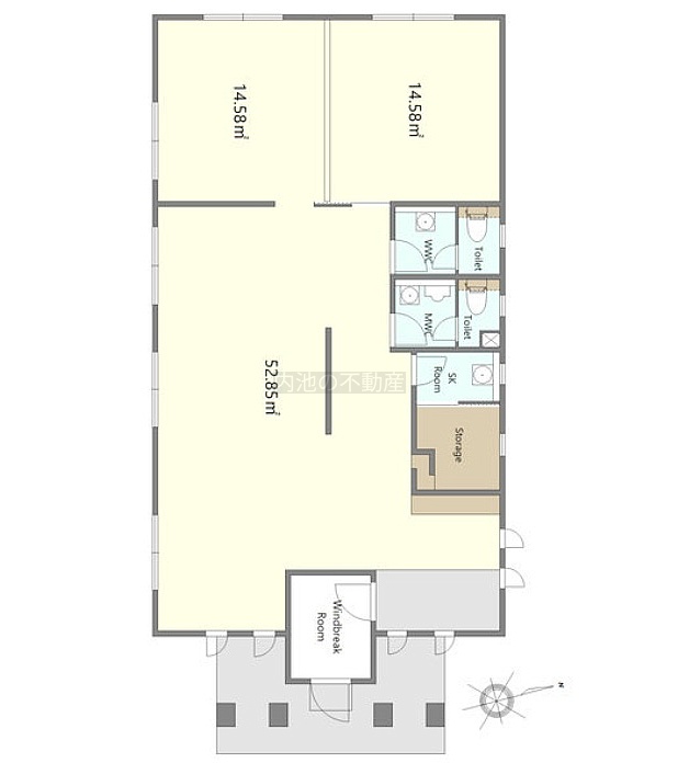
その他 99.18㎡
住所
交通
中央バス 「屯田7-4」停(徒歩1分)
百合が原駅(徒歩28分)
太平駅(徒歩30分)
篠路駅(徒歩39分)
新琴似駅(徒歩39分)
駐車場
有り 空き3台

出店おすすめ業種

設備・特徴

特徴
路面店 男女別トイレ
室内設備・特徴
照明器具付 ガス設備 給排水設備
立地
商店街に面す 幹線道路沿い
条件
24時間利用可
駐車場
無料駐車場あり

物件概要

階数
1階/地上1階建
専有面積
30.00坪 (99.18㎡)
所在地
北海道札幌市北区屯田七条4丁目1-26
構造
木造
契約期間
定期借家
引渡し時期
2026年01月中旬
入居歴
あり
出店可能業種
教育・スクール、小売・物販、事務所
取引態様
媒介(客付)
物件No.
3711011
駐車場3台【無料】 一棟貸し物件 1階路面店 給排水個別有り トイレ個別有り 飲食店 オフィス ※諸条件ご相談ください。 スクール

費用詳細

賃料
29万7,000円
敷金
162万円
礼金
無料
仲介手数料
29万7,000円
管理費/共益費
無料
駐車場
有り

駐車可能台数: 3台

備考: ※車種・停め方による

周辺環境

飲食店 なごやか亭屯田店

約387m 5分

ドラッグストア サンドラッグ屯田店

約328m 5分

銀行 北海道銀行屯田パーソナル支店

約420m 6分

スーパー 業務スーパー屯田店

約473m 6分

飲食店 すき家札幌屯田店

約227m 3分

ショッピングセンター ユニクロ札幌屯田店

約207m 3分

銀行 北洋銀行屯田北支店

約123m 2分

銀行 北洋銀行屯田支店

約122m 2分

ホームセンター ヤマダデンキテックランド札幌屯田店

約193m 3分

コンビニ セイコーマート季実の里店

約68m 1分
011-280-4118

受付時間 9:00~17:00

定休日 土曜・日曜・祝日

公式LINE お問合せ